Destaques

Obras do Prosamim no São Raimundo iniciam nova fase

0

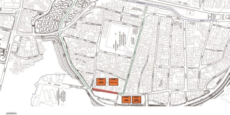
O Governo do Amazonas, por meio da Unidade Gestora de Projetos Especiais (UGPE), vem executando obras de saneamento básico no bairro São Raimundo, zona oeste de Manaus, e iniciará uma nova fase, a ser realizada de 10 (segunda-feira) a 22 (sábado) de fevereiro, que ocasionará interdição de um trecho da rua Oswaldo Cruz, entre as ruas Lauro Machado e São Bento.

As obras fazem parte da modernização do saneamento e tratamento de esgoto na zona sul da cidade, por meio da Estação de Tratamento do Educandos (ETE), que irá tratar o esgoto dos bairros Aparecida, Betânia, Cachoeirinha, Centro, Colônia Oliveira Machado, Educandos, Glória, Praça 14, Presidente Vargas e São Raimundo.

Durante o período das obras, a linha de ônibus 101, que tem em seu trajeto a Rua Oswaldo Cruz, terá seu itinerário alterado, seguindo pela Avenida Presidente Dutra em toda sua extensão. A interdição do trecho ficará suspensa para o tráfego de motos e carros, ficando liberado apenas para o acesso dos moradores às suas residências.

De acordo com o subcoordenador de engenharia da UGPE, engenheiro civil João Benaion, as obras que estão sendo implantadas irão coletar e tratar o esgoto dos moradores das zonas sul e oeste, contribuindo para a preservação da Bacia do São Raimundo.

Linha de ônibus – A Superintendência Municipal de Transportes Urbanos (SMTU) informou que a linha de ônibus 101 terá seu itinerário alterado, seguindo pela avenida Presidente Dutra em toda a sua extensão ao invés de acessar a rua São Bento.

Você pode gostar

Comentários

Deixe uma resposta

O seu endereço de e-mail não será publicado. Campos obrigatórios são marcados com *

Mais em Destaques